Regis: el reino olvidado
Una de las mayores debilidades actuales en la gestión de las ciudades salvadoreñas es la poca atención en la vivienda social. A diferencia de los proyectos promovidos a partir de los 50 por el extinto Instituto de Vivienda Urbana (IVU), la inversión privada salvadoreña no ha reflexionado mayor cosa sobre el concepto de vivienda, solo lo necesario para que su producción sea lo suficientemente rentable dentro de un rango de precios extremadamente reducido, si se relaciona con la crítica capacidad adquisitiva de las mayorías sociales.
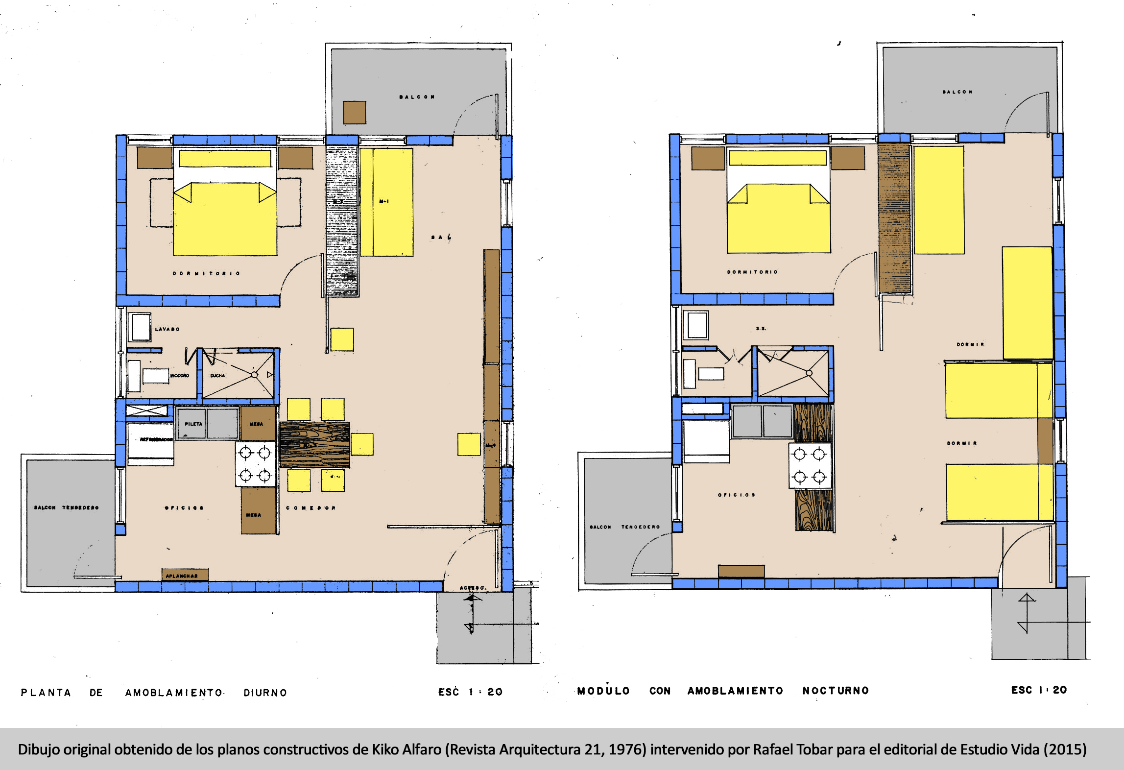
Según relata la edición 21 de la revista Arquitectura (1976), órgano del Colegio de Arquitectos de El Salvador (Cades), por ese año Kiko Alfaro, doctor en arquitectura, proyectó los condominios El Modelo «Regis», el cual también fue construido por la compañía Campos, S.A. El concepto que Kiko había ideado permitía vender una unidad habitacional a una familia con ingreso mensual promedio de quinientos colones (doscientos dólares en esa época), continúa el artículo revelando que la idea fue concebida aproximadamente quince años atrás en los que había sido sometida a «estudio e investigaciones minuciosas, teniendo como objetivo principal una típica familia salvadoreña». El resultado fue una unidad habitacional que facilitaba una modalidad para actividades diurnas y otra para actividades nocturnas, esta versatilidad se consiguió mediante camas retráctiles de pared, una cama transformable en sofá, una mesa de comedor retráctil, un baño de uso múltiple, el dormitorio principal y un espacio de oficios sumamente modesto, que daba cabida a la realización de las tareas del hogar gracias a un pequeño mueble de almacenaje, una pila lavadero, un planchador retráctil y conexiones para estufa y refrigerador. Por si fuera poco, la unidad se insertó en un conjunto vertical de vivienda de cuatro niveles, así que el programa se completó con un balcón tendedero al lado de los oficios y un balcón de uso general al lado de la sala. Puede afirmarse, desde las tendencias contemporáneas de la arquitectura de El Salvador, que el Condominio Regis fue concebido «del interior al exterior».
Las paredes, como relata la revista y como puede apreciarse en la actual y deteriorada construcción, funcionan como muros de carga, mientras que los balcones son voladizos. Cuatro torres con cuatro unidades cada una se acercan emplazándose con una diferencia de nivel de 70 cms entre cada una de ellas, de manera que se accede a los apartamentos a través de un nucleo de circulación vertical que no liga ninguna de estas torres, más bien cada descanso nace en voladizo de cada acceso haciendo que los peldaños sean segmentos estructuralmente flexibes. Lamentablemente, en la década de los 70 eran muy pocos los ensayos estructurales realizados sobre la tecnología aplicada en esta construcción y el terremoto de 1986 dañó severamente los edificios, las autoridades competentes en el momento declararon inservibles los edificios recomendando su demolición junto a decenas de otros que se encontraban cercanos en el centro de San Salvador. En la actualidad, las mismas condiciones de pobreza, la falta de alternativas para la adquisición de vivienda, la invasión y el vandalismo conviven en lo que queda de este complejo habitacional.
Las cuatro torres fueron emplazadas en un terreno localizado sobre la calle San Jacinto en el barrio Candelaria, al sur del centro de San Salvador, para 1976 este sitio contenía un uso primordialmente habitacional, pero con la característica de ser inmediato a varios sitios importantes. El artículo lista lugares como el Palacio Nacional, el Mercado Modelo y el Jardín Zoológico entre otros ubicados a menos de 600 metros. El emplazamiento juega con diferentes ejes de composición que permiten apreciar la sencilla pero rica volumetría de las torres (ver imagen principal) y entre ellas se localizan áreas de juego, áreas verdes, aceras, caseta del conserje y un estacionamiento para 21 vehículos (uno por cada tres apartamentos). A excepción de la propuesta de vivienda en altura para la comunidad Las Palmas (Fundasal, 2000), en el país no ha habido producción arquitectónica de corte social que haya retomado conceptos similares.
Al ver atrás y reflexionar sobre el pensamiento de Kiko Alfaro y el contexto salvadoreño antes de la guerra civil, es lógico pensar que Regis representó una respuesta ante los fracasados modelos de vivienda vertical que se plantearon en gran escala en edificios como los que hoy ocupan el Ministerio de Hacienda y el Instituto Salvadoreño del Seguro Social (ISSS), entre algunos otros. Kiko logró un equilibrio entre escala, estructura, espacio y costo que promovió un modelo de vivienda social digna, pero que lamentablemente necesitó probarse ante las fuerzas sísmicas propias del entorno salvadoreño y al parecer no ha logrado superarse como proyecto sostenible. Parecería como si luego de 1986 Regis se convirtió en un reino olvidado y las viviendas de corte social producidas en la posguerra ni pensaron en ideas como las divisiones móviles o los muebles transformables de Kiko, quien en sus últimos años llamaba «muriendas» al referirse a la vivienda social que se ha producido en El Salvador en los últimos años.
Agradecimientos especiales a Juan Carlos Palacios por facilitar su fotografía.
— Posted on mayo 14, 2015 at 6:11 pm by Rafael Tobar
— arquitectura, historia, interiorismo







marai jesus albarral núñez
mayo 4, 2025 at 7:55 pm
Excelente artículo .
Preparando exposicion sobre la modernidada en el salvador , me interesa informacion acerca de este proyectos .
Soy arquitecta de sevilla, españa,
profesora de la universidad de sevilla
muchas gracias
mjan@us.es
Rafael Tobar
mayo 5, 2025 at 9:52 pm
Nos alegra que nuestro contenido sea de utilidad para la comunidad académica. Nos pondremos en contacto contigo si deseas más información. Un saludo.
Susy Castañeda
mayo 14, 2015 at 7:46 pm
Excelente comentario, y es que para esa época la producción de vivienda era tal que los productores de estas muriendas como les llamaba el arq. Alfaro, las diseñaban con dimensiones de muebles menores a los que vendían el el merca, es decir mandaban a hacer muebles especiales para la casa modelo.